- [神戸の賃貸 ホームメイトFC三宮店]TOP
- 賃貸物件を探す
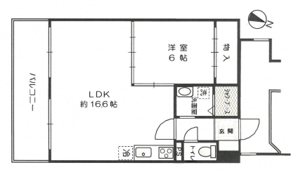
- 甲南ドエル御影 311|神戸市東灘区御影本町(阪神本線住吉駅)のマンション物件詳細
神戸の賃貸物件を検索
甲南ドエル御影 311|神戸市東灘区御影本町(阪神本線住吉駅)のマンション物件詳細
|  |  | ||||
| その他の写真 |  |  |  |  | ※画像をクリックすると 拡大表示します。 | 
|---|---|---|---|---|---|
|  |  |  |  | ||
|  | ||
|---|---|---|
| ホームメイトFC三宮店 TEL.078-334-2960 | 物件番号 | 100961828781 | 
|  | 
|---|
| 
 
 
 
 | 

































