- [神戸の賃貸 ホームメイトFC三宮店]TOP
- 賃貸物件を探す
- リーガル神戸三宮山手 803|神戸市中央区下山手通(JR東海道本線(近畿)三ノ宮駅)のマンション物件詳細
神戸の賃貸物件を検索
リーガル神戸三宮山手 803|神戸市中央区下山手通(JR東海道本線(近畿)三ノ宮駅)のマンション物件詳細
![]() |
![]() |
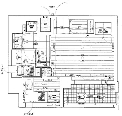
||||
| その他の写真 | ![]() |
※画像をクリックすると 拡大表示します。 |
|||
|---|---|---|---|---|---|
| ホームメイトFC三宮店 TEL.078-334-2960 |
物件番号 | 100961831323 |
|---|---|---|
|



















