プレサンス神戸水木通ルミエス 0709|神戸市兵庫区水木通(神戸高速線新開地駅)のマンション物件詳細

物件番号 100961831805
家賃
93,510円
共益費
8,490円
交通 ・神戸高速線新開地より徒歩2分
・神戸高速線新開地より徒歩2分
所在地 神戸市兵庫区水木通1丁目5番5号賃貸物件のMAP
敷金
礼金
保証金
解約引
契約一時金
償却費
取引態様
入居時期
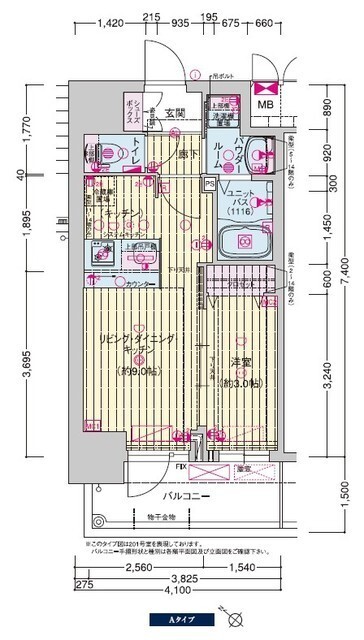
間取
専有面積
駐車場
部屋の向き
種別
完成年月
建物構造
-
12万円
-
-
-
-
一般
即入居
1LDK
30.34m2

南西向き
マンション
2024年9月
鉄筋コンクリート
15階建/7階
設備・条件
給湯追い焚き給湯浴室乾燥機ウォッシュレットエアコンモニタ付インターホンオートロック宅配ボックスエレベータBS

設備・条件アイコンの説明を見る

コメント プレサポ24990円(月額) プレサンス神戸水木通ルミエス:新開地駅にも近くて便利。セキュリティ面は、TVインターホン・オートロックなどを備え付けているので安心して暮らせます。急なお引越しにもうれしい、すぐに入居ができる空き部屋となっております。楽しく新開地周辺でお部屋探しを。078-334-2960かapaman-w@apaman-web.co.jpから遠慮なくアパマン住宅までご連絡ください。
プレサンス神戸水木通ルミエス 0709|神戸市兵庫区水木通(神戸高速線新開地駅)のマンション間取 プレサンス神戸水木通ルミエス 0709|神戸市兵庫区水木通(神戸高速線新開地駅)のマンション外観
その他の写真 ※画像をクリックすると
拡大表示します。
この物件のお問い合わせ先
ホームメイトFC三宮店
TEL.078-334-2960
物件番号 100961831805
免許番号:兵庫県知事(9)第9090号
会社名:アパマン住宅神戸三宮本店
所在地:兵庫県神戸市中央区三宮町1丁目8番1号 さんプラザ 112号室 この店のMAP
Tel:078-334-2960 FAX:078-334-2962
※お問い合わせの際は、物件番号や「ホームメイトFC三宮店のホームページを見て」とお伝えいただくと対応がスムーズになります。

この物件について問い合わせる

こちらの物件もおすすめです!
クレジットカードで初期費用などのお支払い可能!

このページのTOPへ