- [神戸の賃貸 ホームメイトFC三宮店]TOP
- 賃貸物件を探す
- プレサンス神戸水木通ルミエス 0303|神戸市兵庫区水木通(神戸高速線新開地駅)のマンション物件詳細
神戸の賃貸物件を検索
プレサンス神戸水木通ルミエス 0303|神戸市兵庫区水木通(神戸高速線新開地駅)のマンション物件詳細
![]() |
![]() |
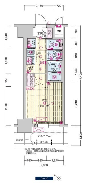
||||
| その他の写真 | ※画像をクリックすると 拡大表示します。 |
||||
|---|---|---|---|---|---|
| ホームメイトFC三宮店 TEL.078-334-2960 |
物件番号 | 100961835119 |
|---|---|---|
|


















