- [神戸の賃貸 ホームメイトFC三宮店]TOP
- 賃貸物件を探す
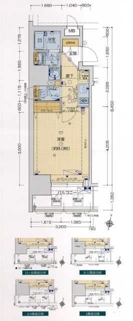
- ララプレイス三宮ルミナージュ 1501|神戸市中央区御幸通(神戸市営地下鉄海岸線三宮・花時計前駅)のマンション物件詳細
神戸の賃貸物件を検索
ララプレイス三宮ルミナージュ 1501|神戸市中央区御幸通(神戸市営地下鉄海岸線三宮・花時計前駅)のマンション物件詳細
![]() |
![]() |
||||
| その他の写真 | ![]() |
※画像をクリックすると 拡大表示します。 |
|||
|---|---|---|---|---|---|
| ホームメイトFC三宮店 TEL.078-334-2960 |
物件番号 | 100961839738 |
|---|---|---|
|



















