- [神戸の賃貸 ホームメイトFC三宮店]TOP
- 賃貸物件を探す
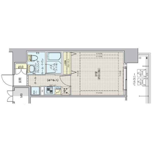
- エステムコートみなと元町THE FIRST 406|神戸市中央区元町通(神戸高速線花隈駅)のマンション物件詳細
神戸の賃貸物件を検索
エステムコートみなと元町THE FIRST 406|神戸市中央区元町通(神戸高速線花隈駅)のマンション物件詳細
![]() |
![]() |
||||
| その他の写真 | ![]() |
![]() |
※画像をクリックすると 拡大表示します。 |
||
|---|---|---|---|---|---|
| ホームメイトFC三宮店 TEL.078-334-2960 |
物件番号 | 100961846901 |
|---|---|---|
|




















