- [神戸の賃貸 ホームメイトFC三宮店]TOP
- 賃貸物件を探す
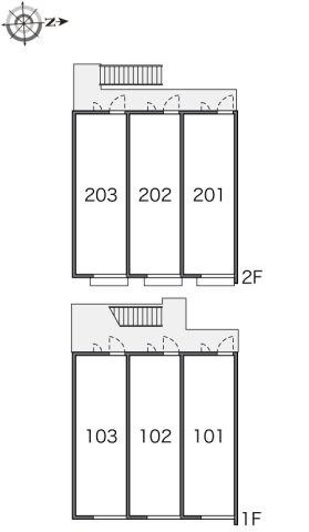
- レオパレス近松Ⅱ 101|尼崎市上坂部(JR福知山線塚口駅)のアパート物件詳細
神戸の賃貸物件を検索
レオパレス近松Ⅱ 101|尼崎市上坂部(JR福知山線塚口駅)のアパート物件詳細
![]() |
![]() |
||||
| その他の写真 | ![]() |
![]() |
![]() |
![]() |
※画像をクリックすると 拡大表示します。 |
|---|---|---|---|---|---|
![]() |
![]() |
![]() |
|||
| ホームメイトFC三宮店 TEL.078-334-2960 |
物件番号 | 100961850404 |
|---|---|---|
|

























