- [神戸の賃貸 ホームメイトFC三宮店]TOP
- 賃貸物件を探す
- プレサンス三宮フラワーロード 0302|神戸市中央区浜辺通(ポートアイランド線貿易センター駅)のマンション物件詳細
神戸の賃貸物件を検索
プレサンス三宮フラワーロード 0302|神戸市中央区浜辺通(ポートアイランド線貿易センター駅)のマンション物件詳細
![]() |
![]() |
||||
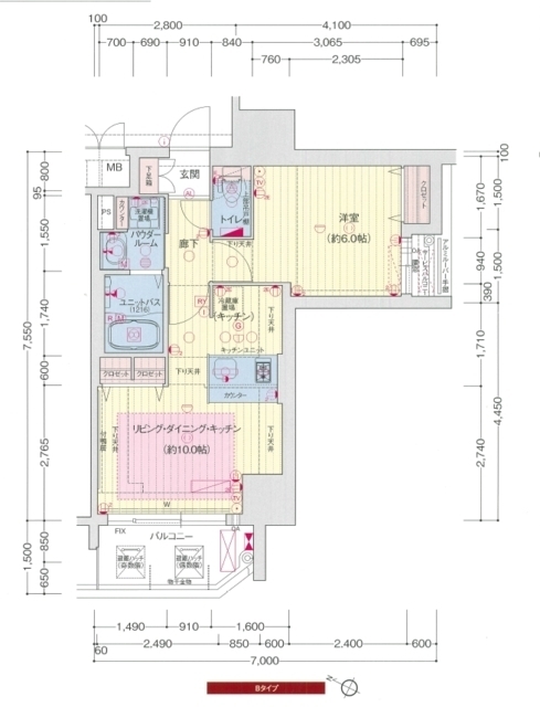
| その他の写真 | ※画像をクリックすると 拡大表示します。 |
||||
|---|---|---|---|---|---|
| ホームメイトFC三宮店 TEL.078-334-2960 |
物件番号 | 100961850659 |
|---|---|---|
|


















