- [神戸の賃貸 ホームメイトFC三宮店]TOP
- 賃貸物件を探す
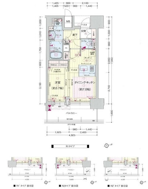
- プレサンスジェネ新神戸ステーションフロント 1008|神戸市中央区布引町(神戸市営地下鉄線新神戸駅)のマンション物件詳細
神戸の賃貸物件を検索
プレサンスジェネ新神戸ステーションフロント 1008|神戸市中央区布引町(神戸市営地下鉄線新神戸駅)のマンション物件詳細
![]() |
![]() |
||||
| その他の写真 | ※画像をクリックすると 拡大表示します。 |
||||
|---|---|---|---|---|---|
| ホームメイトFC三宮店 TEL.078-334-2960 |
物件番号 | 100961851997 |
|---|---|---|
|


















