- [神戸の賃貸 ホームメイトFC三宮店]TOP
- 賃貸物件を探す
- プレサンス三宮ポルト 1206|神戸市中央区御幸通(阪神本線神戸三宮駅)のマンション物件詳細
神戸の賃貸物件を検索
プレサンス三宮ポルト 1206|神戸市中央区御幸通(阪神本線神戸三宮駅)のマンション物件詳細
![]() |
![]() |
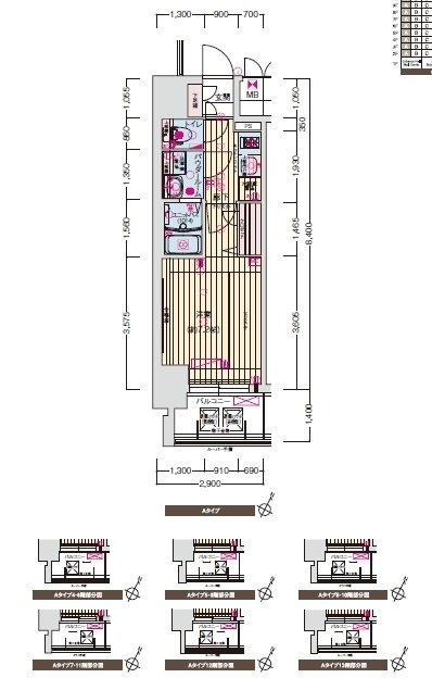
||||
| その他の写真 | ※画像をクリックすると 拡大表示します。 |
||||
|---|---|---|---|---|---|
| ホームメイトFC三宮店 TEL.078-334-2960 |
物件番号 | 100961835052 |
|---|---|---|
|


















