- [神戸の賃貸 ホームメイトFC三宮店]TOP
- 賃貸物件を探す
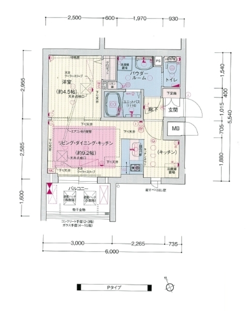
- プレサンス THE 神戸 1007|神戸市兵庫区西出町(神戸市営地下鉄海岸線ハーバーランド駅)のマンション物件詳細
神戸の賃貸物件を検索
プレサンス THE 神戸 1007|神戸市兵庫区西出町(神戸市営地下鉄海岸線ハーバーランド駅)のマンション物件詳細
![]() |
![]() |
||||
| その他の写真 | ![]() |
※画像をクリックすると 拡大表示します。 |
|||
|---|---|---|---|---|---|
| ホームメイトFC三宮店 TEL.078-334-2960 |
物件番号 | 100961846205 |
|---|---|---|
|



















